进口电磁阀   |  进口卫生级阀门   |  进口真空阀门   |  进口蝶阀   |  进口调节阀   |  进口隔膜阀   |  进口减压阀   |  进口疏水阀   |  进口截止阀   |  进口仪表阀门管件   |  进口安全阀   |  进口球阀   |  进口放料阀   |  进口旋塞阀   |  进口管夹阀   |  
产品分类
 进口电磁阀
 进口卫生级阀门
 进口真空阀门
 进口蝶阀
 进口调节阀
 进口隔膜阀
 进口减压阀
 进口疏水阀
 进口截止阀
 进口仪表阀门管件
 进口安全阀
 进口球阀
 进口放料阀
 进口旋塞阀
 进口管夹阀
 产品搜索
 业务联系
 人才招聘
 客服电话
 在线联系
   首页 - 产品展厅 - 产品介绍  
进口先导式安全阀
产品名称:进口先导式安全阀
产品型号:WODE
询问进口先导式安全阀价格
咨询电话:010-57038765、15001010879
传真:010-51298906
点击看大图
进口先导式安全阀
 进口先导式安全阀
 
进口先导式安全阀|进口天然气先导式安全阀|进口加气站高压安全阀|进口石油气先导式安全阀|德国沃德WODE进口安全阀
品牌:德国沃德WODE
一、进口先导式安全阀产品概述
进口先导式安全阀,Pilot type safety valve, 也叫先导式高压安全阀,天然气先导式安全阀,加气站高压安全阀,石油气先导式安全阀,高压天然气安全阀,是由一个主阀(安全阀)和一个先导阀(直接作用式安全阀)组成,主阀是真正的安全阀,而先导阀是用来感受受压系统的压力并使主阀开启和关闭,用导阀压力信号打开主阀阀瓣,从而开启和关闭阀门的来达到泄压的安全阀,具有开启灵敏,回座压力高,密封性好特点,广泛使用于用于石油天然气、化工、电力、冶金和城市燃气等领域,是受压设备、容器或管路上的最佳超压保护装置。
二、进口先导式安全阀原理
先导式安全阀利用导阀来感测被控压力信号并给出信号,当安全阀前的压力低于整定压力时,导阀和主阀都处于无泄漏的关闭状态。
主阀通过导阀的供应导管,作用于导阀阀座和主阀阀芯顶部,由于阀芯的顶部大于底部(阀座区)有一股大的作用力使阀芯保持向下,阀前压力越接近整定压力关闭越严密,这种自密封结构在主阀硬软双质密封副作用下,净密封力随着管道压力增加和接近设定点而增加。当阀前压力达到或超过整东压力时,导阀开启,主阀迅速打开,介质排放;当阀前压力回到整定压力以下时,导阀关闭,主阀也随之关闭。
三、进口先导式安全阀产品特征
先导式安全阀变弹簧直接作用为导阀间接作用,提高了动作的灵敏度,而且主阀采用套筒活塞式,双重密封阀座结构,动作精度高、重复性好、回座快、不泄漏、能带高背压排放、工作等命长、工作稳定可靠,它还可在线调校,反复启跳排放后,仍然能自动回座,关闭严密,操作维护方便。
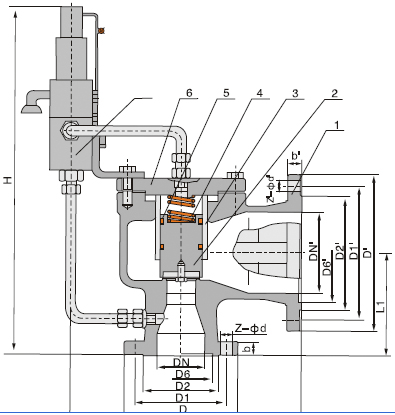
三、进口先导式安全阀尺寸图
注:1、由于网站的版面原因,该安全阀的具体外形尺寸图纸,请联系WODE各代理商。
2、Ⅰ、采油井出口用安全阀,一般选用先导式安全阀,;
Ⅱ、蒸汽发电设备的高压旁路安全阀,一般选用具有安全和控制双重功能的先导式安全阀 
如果您有需要咨询更详细的产品信息
欢迎联系德国沃德WODE授权一级代理商:北京永德宝阀门有限公司